Kolonnvägen 18, 660 kvm - 5 300 kvm

Om lokalen

Stora kontorslokaler med terrass i huset.

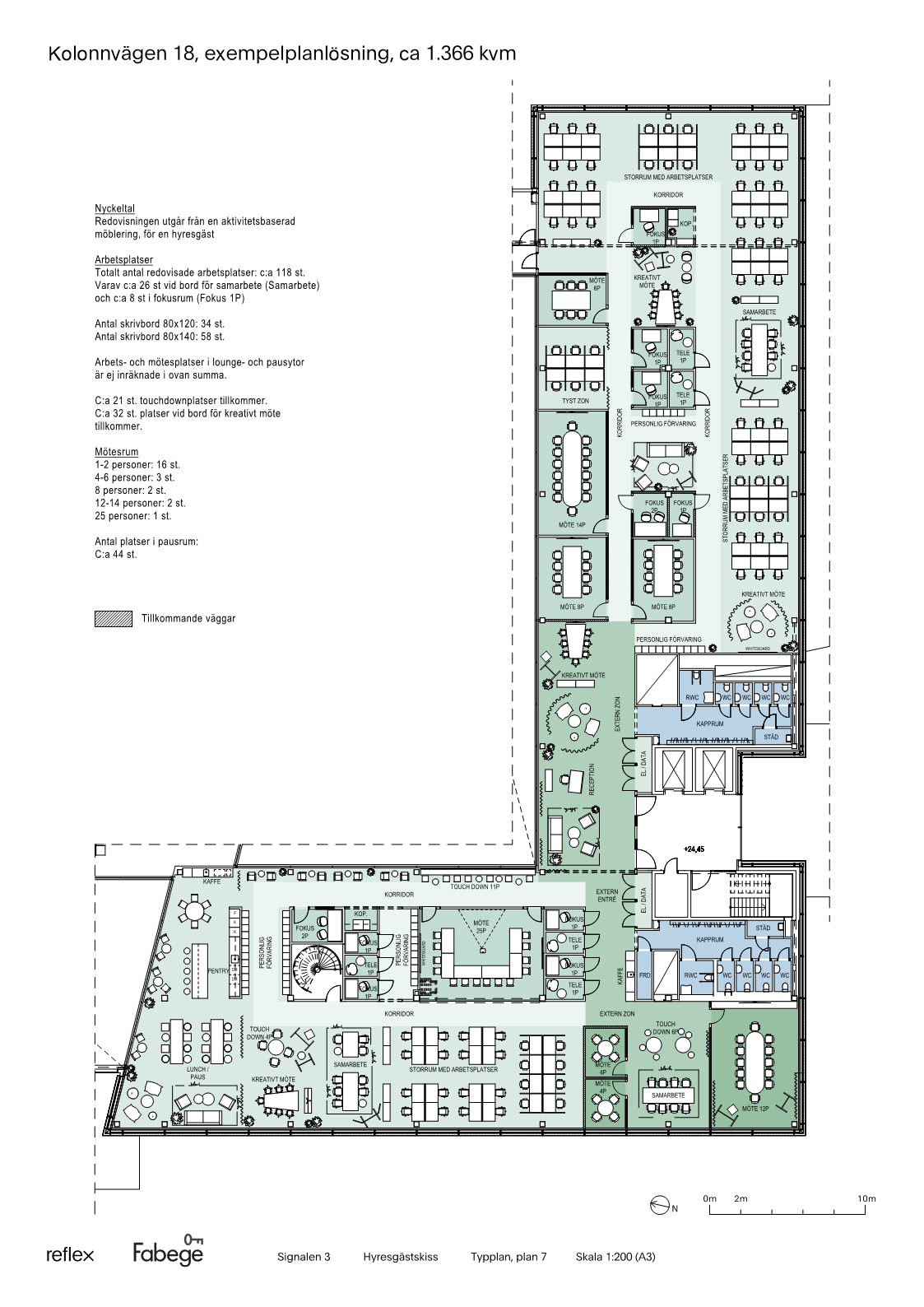
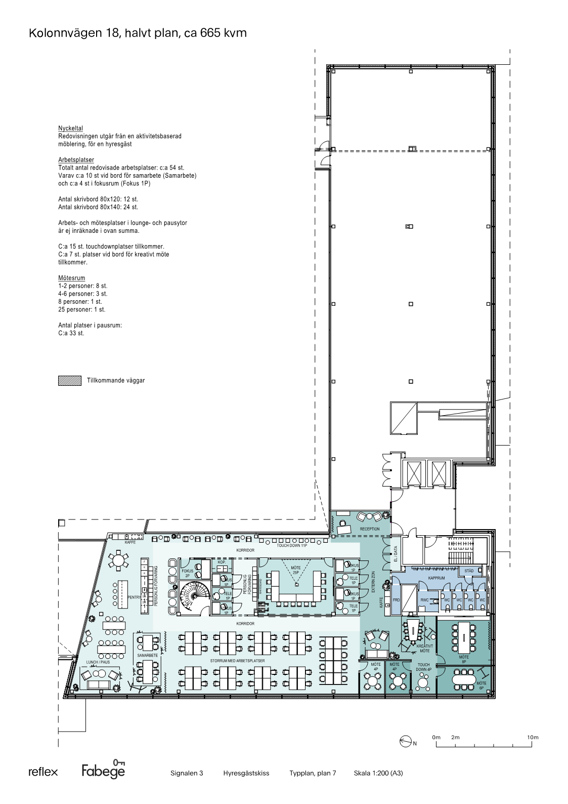
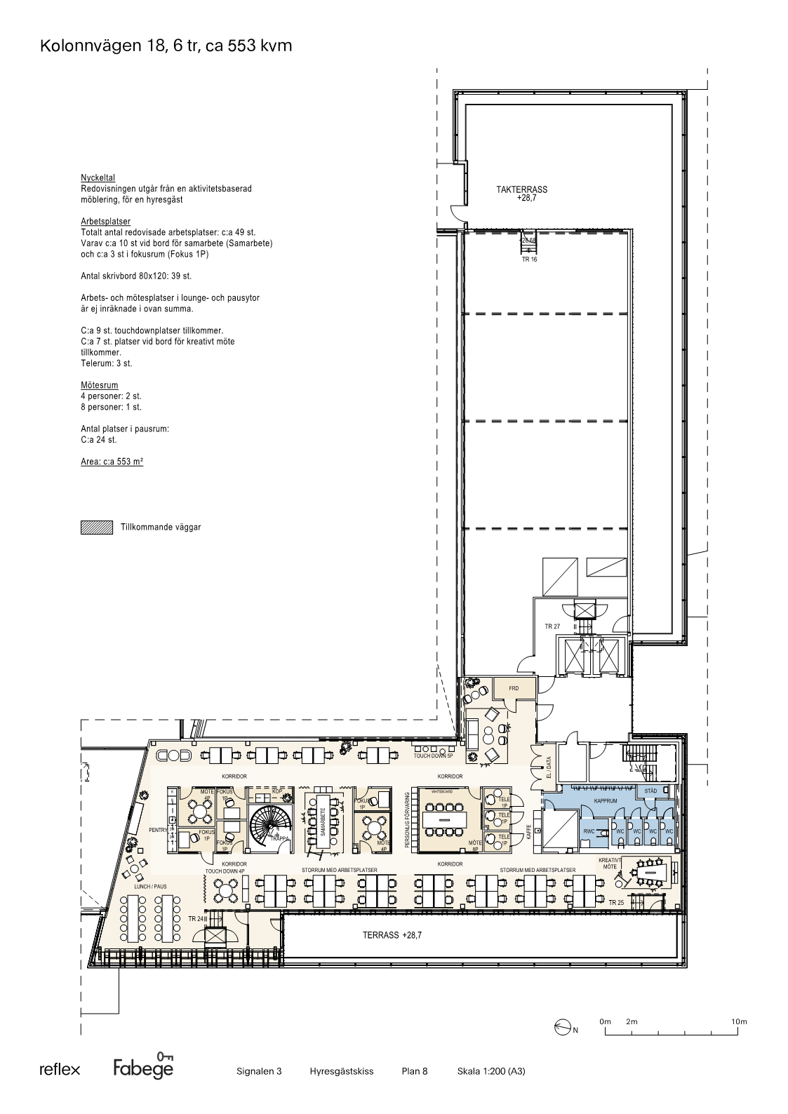
Ljusa kontorslokaler på 2-6 tr (helplanen är ca 1 365 kvm styck) i attraktivt läge nära kommunikationerna i Arenastaden.

Totalt kan ca 6000 kvm sammanhängande yta skapas vilket möjliggör för det större bolaget att få en ny fin hemvist. Våningsplanen är även delbara ungefär på mitten vilket ger 660-700 kvm.

Miljöcertifierad fastighet (BREEAM-SE Excellent). Lokalerna är i bra skick och anpassas självklart till kommande hyresgäst. I fastigheten finns cykel- och bilparkering, duschar, omklädningsrum och terrass.

Service

Förutom ett förstklassigt utbud av shopping och restauranger i Mall of Scandinavia finns även många trevliga lunchrestauranger i närområdet. Behöver du bil bara ibland så finns flera bilpooltjänster.

Det finns även ett mycket bra utbud av konferensmöjligheter på hotellen i området eller på Stawberry Arena. Ett stenkast bort ligger även Sveriges bästa vinhotell, The Winery.

Träningsmöjligheter finns det gott i form av gym och Solnas nya simhall. Vill du få en skön promenad på lunchen kan du gå runt Råstasjön som är en grön oas i stadsdelen. I närheten finns också Hagaparken och Ulriksdals slottsområde, som ingår i nationalstadsparken.

Kommunikationer

Arenastadens geografiska placering är utomordentligt bra kommunikationsmässigt.

Pendeltåg och tvärbana (Solna Station) och kommande tunnelbana 2028. Dessutom en mängd bussar i alla riktningar.
Endast 5 km från Stockholm City med avfarter från både E4 och E18. Även med cykel tar du dig enkelt till Arenastaden, då det finns gott om cykelbanor från alla väderstreck.
Från Solna går ett snabbtåg till Göteborg som trafikeras av VR.
Bromma flygplats nås på 15 min med bil och till Arlanda tar det runt 30 min.

Omgivning

I Arenastaden finns en av norra Europas modernaste stadsdelar, ett område som sjuder av liv både morgon och kväll tack vare den unika kombinationen av kontor, bostäder och norra Europas största köpcentrum. Detta ihop med goda kommunikationerna, de fina hotellen och Sveriges största och modernaste arena för sport och musikevenemang har en stadsdel utöver det vanliga skapats.

  • 660 - 5300 kvm
  • Kolonnvägen 18, Arenastaden
Vill du veta mer?
Jeanette Nyroos
Uthyrare
+46705793033
jeanette.nyroos@fabege.se
Kontaktkort

Intresseanmälan

Arenastaden

Här hittar du Sveriges största arena och Skandinaviens största galleria. Men också det mer småskaliga Haga Norra - Arenastadens nya stadskvarter.

Läs mer om området
WAW - Work Away From Work
Extra arbetsplatser för våra kunder för att underlätta vardagen. Läs mer
VOV Hunddagis
Våra hunddagisar i samarbete med Stockholm Dog Care. Som hyresgäst hos Fabege har du dessutom förtur vid öppningen av VOV och vid lediga platser. Läs mer

Alla bilder

Planlösning

Visa på karta

Filter

Vill du veta mer?

Jeanette Nyroos
Uthyrare
+46705793033

Kontaktkort

Intresseanmälan

Liknande lokaler