Lumaparksvägen 7, 2 915 kvm - 4 992 kvm

Om lokalen

Möjlighet att förhyra unikt kontor med industrikaraktär i Lumafabriken.

Den lediga lokalen är belägen i Lumafabriken i hjärtat av Hammarby Sjöstad. Denna lokal i två våningsplan med entresol erbjuder något extraordinärt, med sin industriella karaktär, goda takhöjd och fina utsikt över Hammarby Sjö. Vi erbjuder yta från 2900 kvm upp till 4992 kvm.

Toppmoderna och nyligen renoverade kontorslokaler erbjuds med möjlig inflytt från Q2 2025.

Service

Hammarby Sjöstad erbjuder service av innerstadskvalitet med ett brett och varierat utbud. Bland restaurangutbudet finns Eatery Luma, Carnegiebryggeriet/Brooklyn Brewery som är både restaurang och bryggeri, Niklas & Friends, Tezukuri Sushi, Restaurang Göteborg, Texas Longhorn, Kaferang, för att bara nämna några. Du hittar även den kända TV konditorn Magnus Johanssons bageri & konditori i hjärtat av sjöstan.
SATS har sitt moderna flaggskeppsgym i Luma men i närheten finns också Nordic Wellness, Fitness24Seven och Puls & Träning. Eller varför inte ta en promenad längs Hammarby sjö, simma några längder i Eriksdalsbadet eller ta ett par åk i Hammarbybacken vintertid.
I Hammarby Sjöstad finns även all annan service som ICA, COOP, blomsterbutik, skomakeri, systembolag och även hotell såsom Park Inn by Radisson och Motel L.

I Hammarby Sjöstad finns även all annan service såsom ICA, Konsum, blomsterbutik, skomakeri, systembolag och mycket annat som kan underlätta vardagspusslet.

Kommunikationer

Från Hammarby Sjöstad tar du dig snabbt till och från innerstaden och har nära till rekreation så som Eriksdalsbadet och Hammarbybacken. Fem kilometer från Sergels Torg är området enkelt tillgängligt med buss, tvärbana, cykel eller bil – ja, till och med båt. M/S Emelie trafikerar sträckan från Luma via Barnängsbryggan och Henriksdalshamnen vidare till Masthamnen och Djurgården till Nybroplan! Tunnelbana till Hammarby Sjöstad: Blå linje förlängs från Kungsträdgården mot Nacka med nya stationer vid Sofia, Hammarby Kanal, Sickla, Järla och Nacka. Projektet beräknas vara klart 2030.

Omgivning

I Hammarby Sjöstad finns entreprenörsandan sedan en lång tid tillbaka och idag är nybyggarandan starkare än någonsin. Stadsdelen växer för att möta efterfrågan på både kontor och bostäder. För närvarande utvecklas 1 300 nya bostäder och 150 000 kvm kontor, både nybyggnation och förädling. Totalt tillförs cirka 10 000 kontorsarbetsplatser.
Hammarby Sjöstad är numera en integrerad del av en innerstad som växer söderut. Stadsdelen kommer att bli en självklar hubb för företag som vill sitta i ett dynamiskt innerstadsläge där blandningen mellan stora och små företag är som allra bäst. Här sitter du granne med bland annat Kustbevakningen, Toca Boca, Plan International, Naturvårdsverket, Hyper Island och Link Arkitektur för att nämna några.

  • 2915 - 4992 kvm
  • Lumaparksvägen 7, Hammarby Sjöstad
Vill du veta mer?
Johanna Andersson
Uthyrningschef Förvaltning
+46 70 819 81 34
Johanna.Andersson@fabege.se
Kontaktkort

Intresseanmälan

Hammarby Sjöstad

I helt nya hus och i förädlade äldre industribyggnader sitter många företag som efterfrågar ett dynamiskt innerstadsläge med kreativa kontorsmiljöer. Här arbetar du i en levande stadsdelskänsla, en härlig blandning av boende, besökare och arbetande.

Läs mer om området
WAW - Work Away From Work
Extra arbetsplatser för våra kunder för att underlätta vardagen. Läs mer
VOV Hunddagis
Våra hunddagisar i samarbete med Stockholm Dog Care. Som hyresgäst hos Fabege har du dessutom förtur vid öppningen av VOV och vid lediga platser. Läs mer

Alla bilder

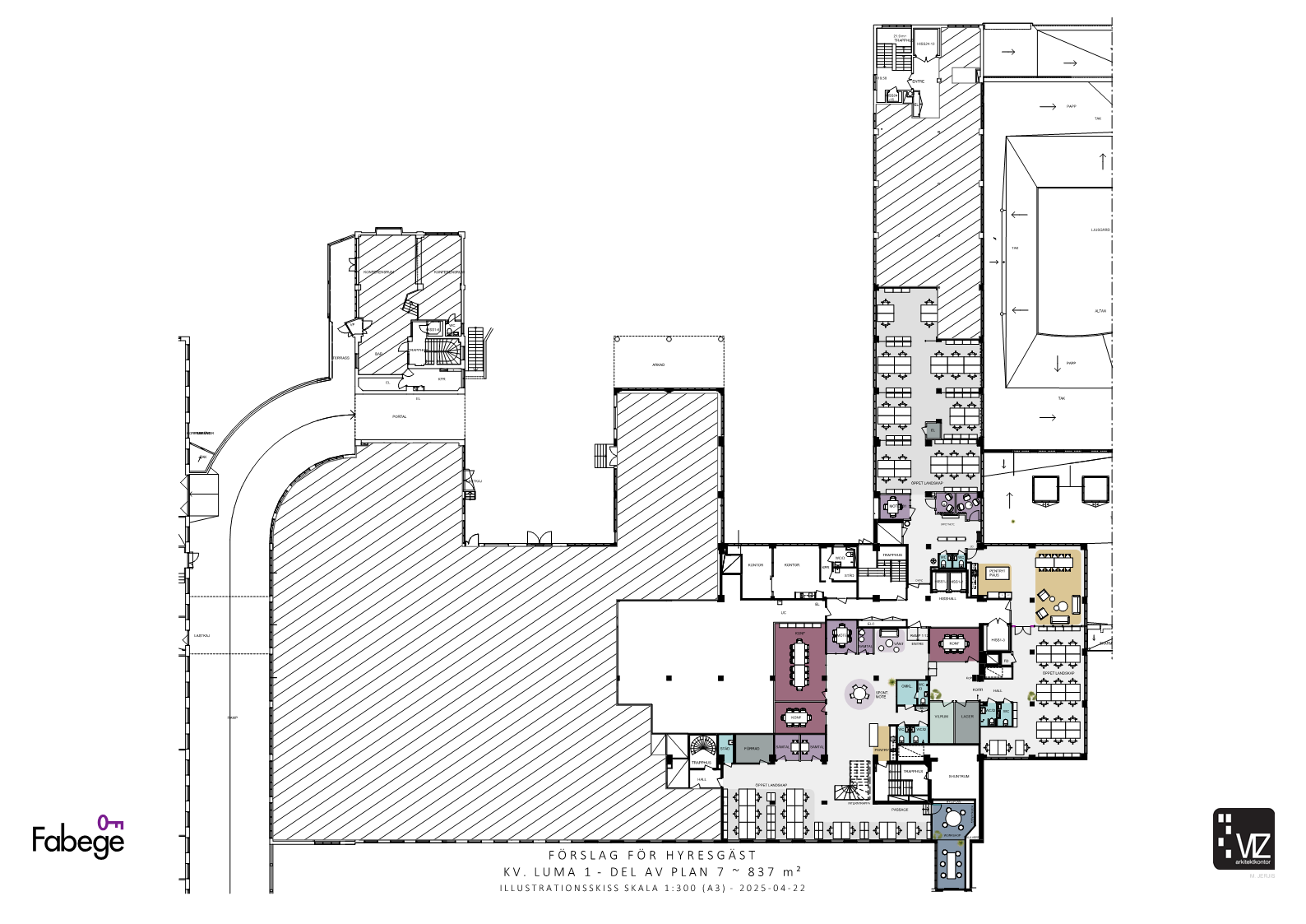
Planlösning

Visa på karta

Filter

Vill du veta mer?

Johanna Andersson
Uthyrningschef Förvaltning
+46 70 819 81 34

Kontaktkort

Intresseanmälan

Liknande lokaler