Norrlandsgatan 23, 770 kvm - 1 570 kvm

Om lokalen

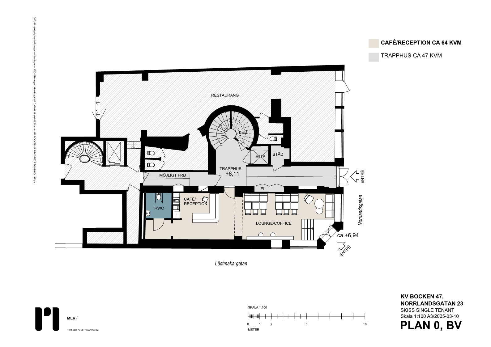
Möjlighet till eget hus!

Norrlandsgatan 23 erbjuder en unik möjlighet att etablera ert företag i en egen fastighet på en av Stockholms mest centrala och eftertraktade adresser.
Här erbjuds en representativ huvudentré i korsningen Norrlandsgatan/Lästmakargatan. Genom varsam renovering har tidstypiska kvaliteter från förra sekelskiftet bevarats och återskapats, samtidigt som moderna och flexibla lösningar har integrerats för att möta dagens krav på funktion och estetik.

Möjlighet finns att växa in i grannhuset på de två översta planen så olika storlekar kan erbjudas.

Norrlandsgatan 23 är mer än en kontorsbyggnad – det är en mötesplats där medarbetare och kunder samlas, där idéer får växa och affärsmöjligheter realiseras. Nu erbjuder vi er nyckeln till ert nya hus!

Service

I området finns all typ av tänkbar service inom gångavstånd. Du har enkel tillgång till parker, kulturutbud, kommunikationer, ett varierat utbud av restauranger och caféer, förstklassiga hotell, shopping samt all annan tänkbar service.

Kommunikationer

Tunnelbanestationerna Hötorget och Östermalmstorg ligger inom bekvämt gångavstånd. Vid Stureplan stannar ett flertal busslinjer. Till T-centralen tar du dig på bara några minuter och härifrån når du hela Stockholm med tunnelbana, pendeltåg, bussar eller fjärrtåg.

Omgivning

Kungsgatan ligger runt hörnet och Stureplan är ett mindre stenkast bort, perfekt för snabba möten och affärsluncher. Runt kvarteren finns restauranger, caféer och butiker som ger energi hela dagen. Om du vill ha en lugn stund väntar Humlegårdens grönska på kort promenad. Dessutom har du Djurgårdens grönska och havsluft inom räckhåll – perfekt för en löprunda eller promenad.

  • 770 - 1570 kvm
  • Norrlandsgatan 23, Stockholms innerstad
Vill du veta mer?
Krister Lööw
Uthyrare
+46 70 832 16 29
Krister.Loow@fabege.se

Intresseanmälan

Stockholms innerstad

Vårt bestånd i innerstaden kännetecknas till stor del av moderna kontor och butiker i områden runt Kungsgatan och Drottninggatan och Hagastaden.

Läs mer om området
WAW - Work Away From Work
Extra arbetsplatser för våra kunder för att underlätta vardagen. Läs mer

Alla bilder

Planlösning

Visa på karta

Filter

Vill du veta mer?

Krister Lööw
Uthyrare
+46 70 832 16 29

Intresseanmälan