Sveavägen 143-145, 900 kvm - 6 300 kvm

Om lokalen

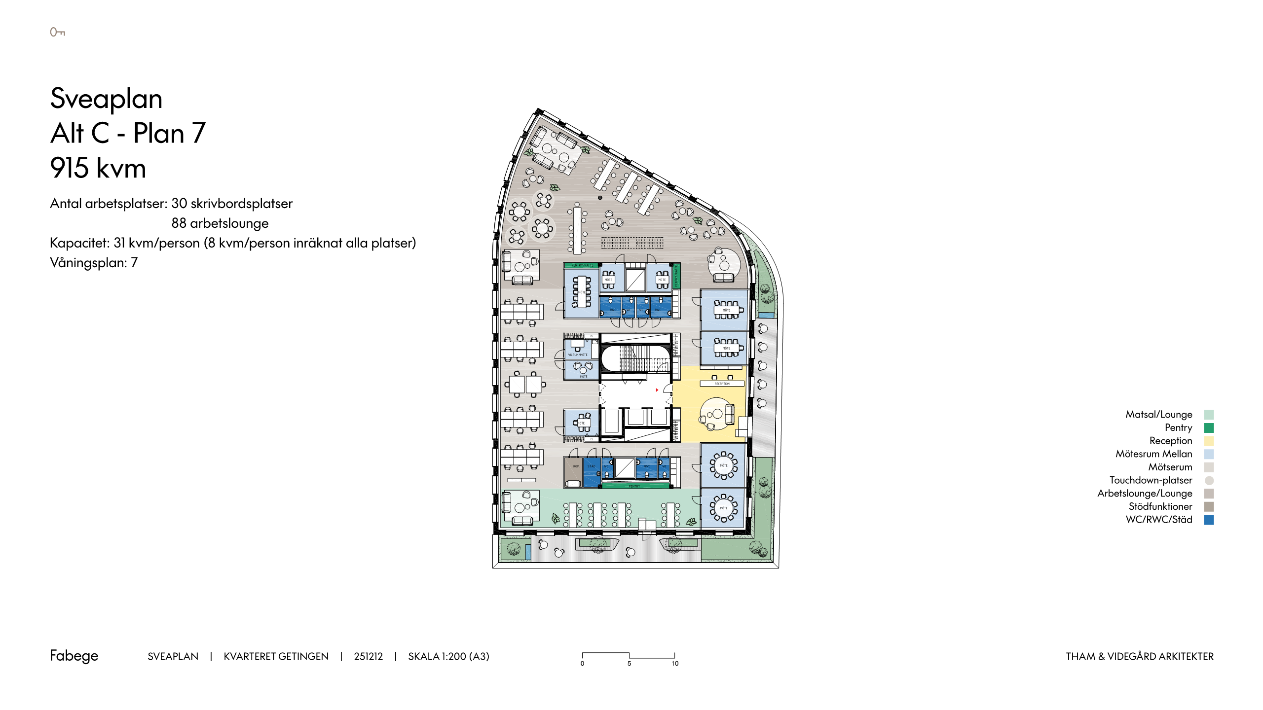
Sveaplan – ny entré till Stockholms innerstad

Vill du att ditt företag ska sitta på en av Stockholms mest attraktiva adresser – där stadspuls, natur och smidiga kommunikationer möts? På Sveaplan, precis vid infarten till Stockholms innerstad, planeras just nu ett nytt kontorshus med vacker arkitektur och hållbarhet i fokus.

På Sveaplan får du mer än bara ett kontor. Du får en arbetsplats i en karaktärsfull fastighet med en generös takterrass och restaurang i huset som gör vardagen enklare, inspirerande och hållbar – för både medarbetare och besökare.

Inflyttning är möjlig 2029 – och redan nu kan du ta första steget mot att etablera din verksamhet här.

Arkitektur som gör avtryck
Det nya kontorshuset vid Sveaplan utvecklas i samarbete med det prisbelönta arkitektkontoret Tham & Videgård – kända för sin samtida, karaktärsstarka arkitektur. Här förenas stenstadens klassiska kvartersstruktur med modern form, där valvformer, mjuka hörn och fasadens materialitet skapar en byggnad som både smälter in i och lyfter området.

Målet är att skapa en ny hörnsten i Stockholm, där estetiska och hållbara värden möts – ett kontorshus som blir lika funktionellt som vackert, med människor och platsen i fokus.

Service

Ett brett utbud av matupplevelser
Runt Sveaplan finns ett rikt utbud av restauranger, caféer och service som gör arbetsdagen smidig – och vardagen lite roligare. Ska du på lunch, after work eller affärsmiddag? Välj mellan områdets serviceutbud av restauranger, däribland O’Learys – en autentisk sportbar med rötter i Boston. Du hittar även L’Avventura i närområdet med smak av Italien och Stallmästargården som serverar modern husmanskost. Även Etoile med en stjärna i Guide Michelin ligger inom gångavstånd från kontoret

Kommunikationer

Kommunikationer
Kollektivt, bil eller cykel? Hit tar du dig enkelt.

Tunnelbana och pendeltåg: Närmaste stationen är Odenplan som ligger 9 minuters promenad bort eller.
Buss: Buss 2, 57, 516 och 515 går ett stenkast från fastigheten vidare mot City och till Solna/Sundbyberg.
Bil: Direkt närhet till E4, E18 och E20.
Arlanda: 29 minuter med bil. Flygbussarna till Arlanda stannar intill korsningen Norra Stationsgatan/Sankt Eriksgatan. Pendeltåg från Odenplan går direkt till Arlanda.

Omgivning

Området – där city möter natur
Sveaplan ligger i en spännande stadsdel som är under stark utveckling. Här växer en livfull stadsdel fram med innerstadskänsla med närhet till city och storstadspulsen, samtidigt som Hagaparken och Brunnsviken ligger alldeles intill. På bara några minuters promenad når du naturen och lugnet – en perfekt balans mellan stad och grönska.

  • 900 - 6300 kvm
  • Sveavägen 143-145, Stockholms innerstad
Vill du veta mer?
Karl Henrik Lenneryd
Uthyrare Projekt
+46 76 894 45 25
Karl-Henrik.Lenneryd@fabege.se

Intresseanmälan

WAW - Work Away From Work
Extra arbetsplatser för våra kunder för att underlätta vardagen. Läs mer

Alla bilder

Planlösning

Visa på karta

Filter

Vill du veta mer?

Karl Henrik Lenneryd
Uthyrare Projekt
+46 76 894 45 25

Intresseanmälan