Wenner-Gren Center

Wenner-Gren Center utvecklas för framtiden

Wenner-Gren Center är ett av Stockholms mest ikoniska landmärken. Den 74 meter höga byggnaden med sina 25 våningar uppfördes 1962 och är klassificerad som blå av Stockholms stad – den högsta kulturhistoriska skyddsnivån.

Under våren 2025 inledde vi en omfattande renovering av fastigheten, som beräknas vara klar under andra kvartalet 2027. Efter över 60 år har fasaden nått sin tekniska livslängd och kommer att förädlas, samtidigt som vi uppgraderar fastighetens standard och service. Fokus ligger på flexibilitet, hälsa, konferensmöjligheter, matupplevelser och ett förbättrat inomhusklimat.

Vi ser fram emot att välkomna både nya och befintliga hyresgäster till en moderniserad och inspirerande miljö.

 

Kortfakta

  • Adress: Sveavägen 166, Sveaplan
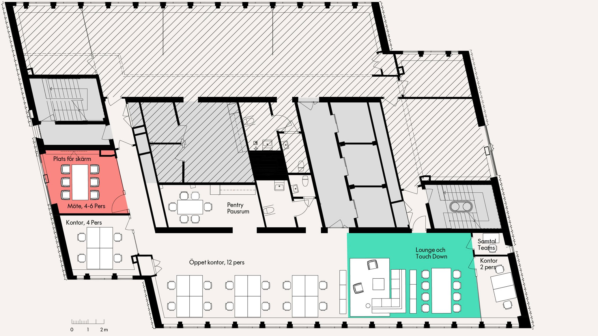
  • Ledig yta: 5 600 kvm
  • Total yta: 400 kvm per plan
  • Miljöcertifiering: BREEAM In Use - Very Good
  • Bil- och cykelparkering
  • 15 min promenad till tunnelbanestation Odenplan
  • Fotograf: Stockholms stad/White Arkitekter

Senaste nytt

Projektinformation - dec 2025

Information om förädling och fasadrenovering av Wenner-Gren Center

Under våren 2025 inledde vi en omfattande renovering av fastigheten, som beräknas vara klar under andra kvartalet 2027. Efter över 60 år har fasaden på höghusdelen nått sin tekniska livslängd och kommer att förädlas, samtidigt som vi uppgraderar fastighetens standard och service. Läs fler utskick

Läs det senaste om pågående arbeten

Fabege utvecklar Wenner-Gren Centers konstnärliga arv

Den nya målningen, Forever Young c/o Fabege, pryder fastigheten under några veckor innan den nya fasaden monteras – men budskapet lever vidare som en hälsning till framtiden.

Läs mer

Historiska målningar från 60-talet dyker upp under fasadarbete på Wenner-Gren Center

När fasaden på Wenner-Gren Center togs ner inför renoveringen dök en oväntad tidskapsel upp – välbevarade reklammålningar från 1960-talet med klassiska varumärken som Kungsörnen och Kellogg’s.

Läs mer

                 

Bilder

                            

Kommunikationer

Kollektivt, bil eller cykel? Hit tar du dig enkelt.

  • Tunnelbana och pendeltåg: Närmaste stationen är Odenplan som ligger 9 minuters promenad bort eller.
  • Buss: Buss 2, 57, 516 och 515 går ett stenkast från fastigheten vidare mot City och till Solna/Sundbyberg. 
  • Bil: Direkt närhet till E4, E18 och E20.
  • Arlanda: 29 minuter med bil. Flygbussarna till Arlanda stannar intill korsningen Norra Stationsgatan/Sankt Eriksgatan. Pendeltåg från Odenplan går direkt till Arlanda.

        

Området – där city möter natur

Sveaplan ligger i en spännande stadsdel som är under stark utveckling. Här växer en livfull stadsdel fram med innerstadskänsla med närhet till city och storstadspulsen, samtidigt som Hagaparken och Brunnsviken ligger alldeles intill. På bara några minuters promenad når du naturen och lugnet – en perfekt balans mellan stad och grönska.

Ett brett utbud av matupplevelser

Runt Sveaplan finns ett rikt utbud av restauranger, caféer och service som gör arbetsdagen smidig – och vardagen lite roligare. Ska du på lunch, after work eller affärsmiddag? Välj mellan områdets serviceutbud av restauranger, däribland O’Learys – en autentisk sportbar med rötter i Boston. Du hittar även L’Avventura i närområdet med smak av Italien och Stallmästargården som serverar modern husmanskost. Även Etoile med en stjärna i Guide Michelin ligger inom gångavstånd från kontoret.

Wenner-Gren Center

Bara ett stenkast från Sveaplan ligger Wenner-Gren Center som är ett av Stockholms mest ikoniska landmärken. Här driver Sabis en restaurang i entréplan och det finns även en toppmodern konferensanläggning att hyra för upp till 180 personer.

Området rymmer också charmiga småbutiker. Här möts livfull affärsverksamhet och rofyllda bostadskvarter i en trivsam och inspirerande mix.

Granne med natursköna Hagaparken och Brunnsviken

Granne med natursköna Hagaparken och Brunnsviken

Grönskande läge nära city med gott om service och restauranger

Grönskande läge nära city med gott om service och restauranger

Filter

Vill du veta mer?

Henrik Bauer
Transaktionschef
+46 70 275 32 90


Sara Hansdotter
Projektchef
+46 72 224 53 54


Karl Henrik Lenneryd
Uthyrare Projekt
+46 76 894 45 25


Wenner-Gren Center är ett av Stockholm mest ikoniska landmärken. Den 74 meter höga byggnaden på Sveavägen 166 uppfördes 1962 och är klassificerad som blå av Stockholms stad – den högsta kulturhistoriska skyddsnivån.

Wenner-Gren Center får nu en funktionell förnyelse och vidareutveckling. 2027 öppnar vi upp för nya kontor i en modern och inspirerande miljö med servicefunktioner på en helt ny nivå med bland annat konferens, restaurang, café, reception, festvåning och gym. Allt med bibehållna arkitektoniska värden och bästa vy över Stockholm.

Wenner-Gren Center ritades av arkitekterna Sune Lindström och Alf Bydén på uppdrag av finansmannen Axel-Wenner Gren, grundare av Electrolux, som hade en stark vision om ett internationellt forskarutbyte i Stockholm. Invigningen 1962 leddes av Kung Gustaf VI Adolf, och byggnaden blev snabbt en ikon i Stockholm.

En gång Sveriges högsta byggnad. Wenner-Gren Center erbjuder en fantastisk utsikt över Stockholms innerstad åt ena hållet, och Hagaparken med Brunnsviken åt andra hållet.

Kontakta mig

Karl Henrik Lenneryd
Uthyrare Projekt
+46 76 894 45 25


Stockholms mest ikoniska landmärke

Välkommen till Wenner-Gren Center, en ikon i Stockholms stadsbild som sedan 1962, både i utformning och i innehåll, bidragit till att utmana staden att utvecklas och tänka nytt.

Ett fullservicehus som förenklar vardagen

I lobbyn välkomnas såväl hyresgäster som besökare av receptionister redo att assistera. Behöver du låna ett paraply eller en WGC-cykel? Behöver du hjälp med inköp till kontoret? Eller kanske planera din nästa konferens? Inget är för stort eller för litet. I lobbyn finns även en kaffebar som erbjuder baristakaffe, fika och enklare måltider.

Längst ner i huset finns ett modernt och välutrustat gym för alla som jobbar i huset. Här kan du träna kondition, styrka med fria vikter eller koppla av i yogahörnan. Du kan också boka personlig träning till ett förmånligt pris. I nära anslutning till gym och omklädningsrum finns även cykelrum där du kan lämna din cykel i tryggt förvar. 

Wenner-Grens Matsal är husets självklara mötesplats. Här serveras förstklassig dagens lunch efter säsong i en avslappnad och stilfull miljö. Kvällstid går restaurangen att abonnera för events och med hjälp våra erfarna projektledare skapar du på ett smidigt sätt kvällar att minnas.

Högst upp i huset hittar du Wenner-Grens Festvåning. Belägen 74 meter upp i luften blir utsikten svårslagen, härifrån ser du ut över både Stockholms innerstad och vackra Hagaparken. Festvåningen kan bokas för middagar, konferenser, event och fester – fantasin sätter gränserna! Våra erfarna projektledare står redo att assistera i planering och genomförande så att du som arrangör kan fokusera helt på gästerna.

Möten och konferens i Wenner-Gren Center

Hörsal för 180 personer

För större föreläsningar och workshops finns en hörsal i huset med plats för 180 sittande gäster. Tekniken är modern med hög kvalitet på såväl ljud som bild.

Konferensrum med fågelperspektiv

Inget slår en bra utsikt! Högst upp i huset, med utsikt över Stockholms innerstad hittar du bokningsbara konferensrum i olika storlekar som bokas smidigt via receptionen eller i vår app.

I Wenner-Gren Center finns kontorslösningar med stor flexibilitet. Oavsett om ni söker ett inflyttningsklart kontor eller flera egna våningsplan skapar vi en lösning som passar ert arbetssätt – idag och i framtiden.

Kontorserbjudandet i Wenner-Gren Center

Planlösning helplan

Hyr ett eller flera våningsplan. Varje plan är ca 400 kvm och rymmer omkring 40 medarbetare. Planlösningen kan anpassas efter era behov och arbetssätt.

Planritning halvplan

Ett halvt våningsplan om cirka 200 kvm, anpassat för cirka 20 medarbetare. Planlösningen kan anpassas efter era behov och arbetssätt.

NOW – Inflyttningsklara all inclusive-kontor

NOW-kontoren innebär färdigmöblerade kontor med service som städning, kaffemaskiner, Wi-Fi och fullt utrustade mötesrum. Här ingår även hjälp med allt från lås, larm, fastighetsbevakning och it-säkerhet. Avtalen i NOW-kontoren är flexibla med uppsägningstid på endast tre månader. Ni betalar en fast månadskostnad − och allt ingår.

Hitta nya perspektiv, 74 meter uppe i luften.
Kontor med fågelperspektiv. Inflytt 2027.

Området

Sveaplan är nära city och storstadspulsen, samtidigt som Hagaparken och Brunnsviken ligger alldeles intill. På bara några minuters promenad når du naturen och lugnet – en perfekt balans mellan stad och grönska.

Här finns ett rikt serviceutbud, både i de närmaste kvarteren och vid Odenplan. En promenad i området väcker snabbt lusten att utforska det stora utbudet av restauranger.

Bland annat hittar du sportbaren O’Learys, L’Avventura med smak av Italien, Stallmästargården som serverar modern husmanskost och Etoile med en stjärna i Guide Michelin.

Kommunikationer

Tunnelbana och pendeltåg
Närmaste stationen är Odenplan som ligger 10 minuters promenad bort.
Buss
Buss 2, 515, 516, och 519 går ett stenkast från Wenner-Gren Center vidare mot City och till Solna/Sundbyberg.
Bil
Direkt närhet till E4, E18 och E20. Parkeringsplatser i husets garage och besöksparkering utanför.
Arlanda
30 minuter med bil. Flygbussarna till Arlanda stannar intill korsningen Norra Stationsgatan/Sankt Eriksgatan. Pendeltåg från Odenplan går direkt till Arlanda.

Senaste nytt

Fabege utvecklar Wenner-Gren Centers konstnärliga arv

Den nya målningen, Forever Young c/o Fabege, pryder fastigheten under några veckor innan den nya fasaden monteras – men budskapet lever vidare som en hälsning till framtiden.

Läs hela nyheten

Projektinformation - dec 2025

Information om förädling och fasadrenovering av Wenner-Gren Center Under våren 2025 inledde vi en omfattande renovering av fastigheten, som beräknas vara klar under andra kvartalet 2027. Efter över 60 år har fasaden på höghusdelen nått sin tekniska livslängd och kommer att förädlas, samtidigt som vi uppgraderar fastighetens standard och service.

Läs det senaste om pågående arbeten

Kontakta mig

Karl Henrik Lenneryd
Uthyrare Projekt
+46 76 894 45 25


Filter