Bryggargatan 12 A, 330 kvm

Om lokalen

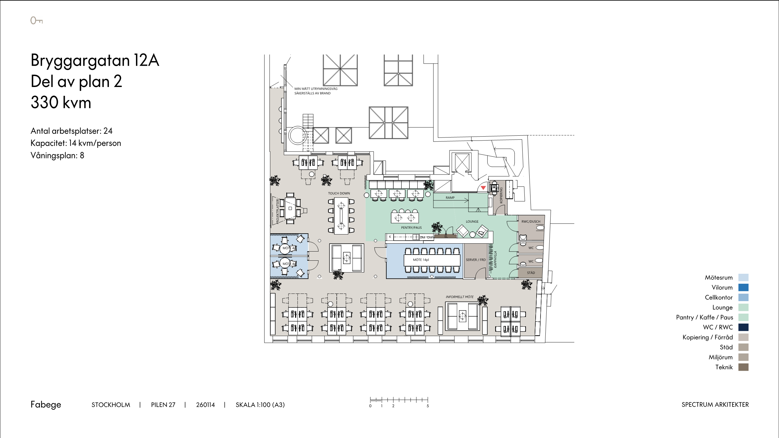
Effektiv och välplanerad kontorslokal

Utmärkt läge med direkt närhet till Stockholms Centralstation och centrala city. Lokalen ligger 1 trappa upp och har direktutgång till den trevliga gemensamma innergården. Effektiv planlösning med en blandning av öppet landskap, projektytor, mötesrum och pentry. Här finns 3 toaletter varav en har dusch. På gården finns cykelparkering samt gemensamma omklädningsrum med dusch för både dam och herr med möjlighet att hyra privat skåp. I huset finns också garage med bilplatser.

Service

I området finns all typ av tänkbar service inom gångavstånd. Du har enkel tillgång till flertalet parker, ett rikt kulturutbud, effektiva kommunikationer, ett varierat utbud av restauranger och caféer, förstklassiga hotell, shopping samt all tänkbar allmän service.

Kommunikationer

Ingång till T-centralen finns runt hörnet och därifrån når du hela Stockholm med tunnelbana, pendeltåg, bussar eller fjärrtåg.

Omgivning

I de så kallade Klarakvarteren, i den nedre delen av Norrmalm, får ni ett cityläge där allt är nära och vardagen blir smidig. Fastigheten möter Vasagatans tydliga puls och Bryggargatans mer avskilda kvarterskänsla. Drottninggatan nås med en kort promenad och Stockholms Centralstation ligger ett stenkast bort.

  • 330 kvm
  • Bryggargatan 12 A, Stockholms innerstad
Vill du veta mer?
Ann-Louise Gustafsson
Uthyrare Förvaltning
+46 76 894 23 00
ann-louise.gustafsson@fabege.se

Intresseanmälan

Stockholms innerstad

Vårt bestånd i innerstaden kännetecknas till stor del av moderna kontor och butiker i områden runt Kungsgatan och Drottninggatan och Hagastaden.

Läs mer om området
WAW - Work Away From Work
Extra arbetsplatser för våra kunder för att underlätta vardagen. Läs mer

Alla bilder

Planlösning

Visa på karta

Filter

Vill du veta mer?

Ann-Louise Gustafsson
Uthyrare Förvaltning
+46 76 894 23 00

Intresseanmälan