Drottninggatan 89, 1 208 kvm

Om lokalen

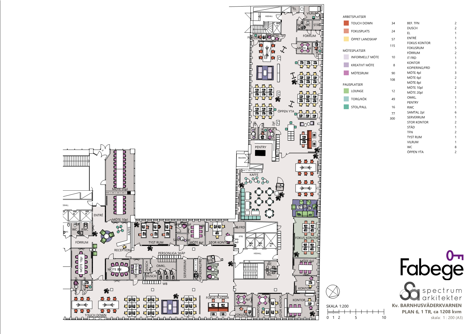
Stor kontorslokal i ett plan i fullservicefastighet

En fastighet som erbjuder det mesta i form av service! Reception, konferenscenter, takterrass och innergård är några av dem. Omklädningsrum, cykelrum, garage och motionsrum är några andra. Lokalen anpassas tillsammans med ny hyresgäst. Välkomna!

Service

I området finns all typ av tänkbar service inom gångavstånd. Du har enkel tillgång till flertalet parker, ett rikt kulturutbud, effektiva kommunikationer, ett varierat utbud av restauranger och caféer, förstklassiga hotell, shopping samt all tänkbar allmän service.

Kommunikationer

Rådmansgatans tunnelbanestation ligger inom bekvämt gångavstånd. Till T-Centralen tar du dig på bara några minuter och därifrån når du hela Stockholm med tunnelbana, pendeltåg, bussar eller fjärrtåg.

Omgivning

Här sitter ni på den lugnare delen av Drottninggatan, med ett behagligt cityläge där tempot är lite mer avskalat men allt fortfarande finns nära. Tegnérlunden och Observatorielunden ligger på bekvämt avstånd för pauser i grönskan mellan möten. Sveavägen nås på några minuters promenad och knyter ihop läget med resten av stan.

  • 1208 kvm
  • Drottninggatan 89, Stockholms innerstad
Vill du veta mer?
Krister Lööw
Uthyrare
+46 70 832 16 29
Krister.Loow@fabege.se

Intresseanmälan

Stockholms innerstad

Vårt bestånd i innerstaden kännetecknas till stor del av moderna kontor och butiker i områden runt Kungsgatan och Drottninggatan och Hagastaden.

Läs mer om området
WAW - Work Away From Work
Extra arbetsplatser för våra kunder för att underlätta vardagen. Läs mer

Alla bilder

Planlösning

Visa på karta

Filter

Vill du veta mer?

Krister Lööw
Uthyrare
+46 70 832 16 29

Intresseanmälan