Lumaparksvägen 7, 2 915 kvm - 4 992 kvm

Om lokalen

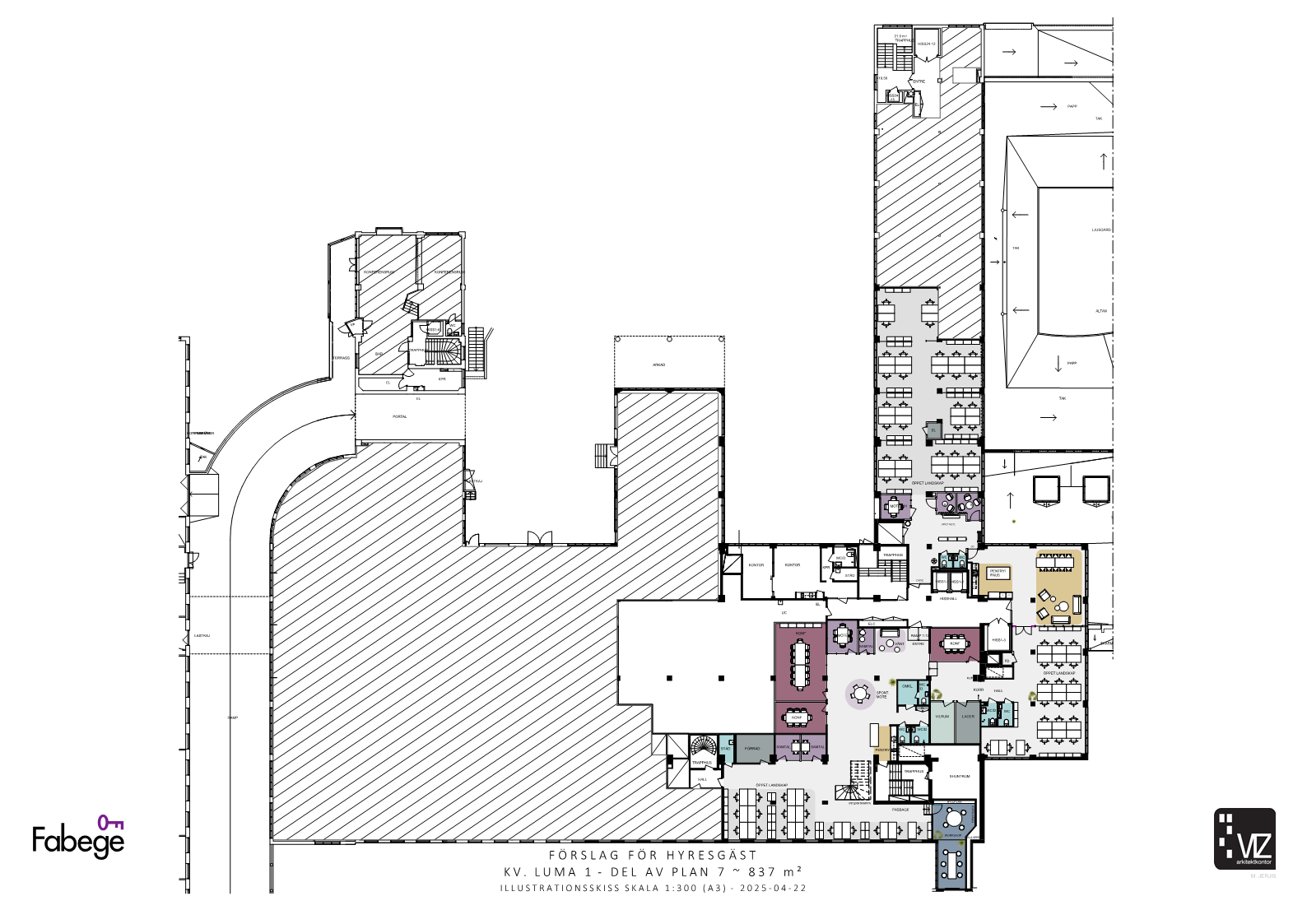
Möjlighet att förhyra unikt kontor med industrikaraktär i Lumafabriken.

Den lediga lokalen är belägen i Lumafabriken i hjärtat av Hammarby Sjöstad. Denna lokal i två våningsplan med entresol erbjuder något extraordinärt, med sin industriella karaktär, goda takhöjd och fina utsikt över Hammarby Sjö. Vi erbjuder yta från 2900 kvm upp till 4992 kvm.

Toppmoderna och nyligen renoverade kontorslokaler erbjuds med möjlig inflytt från Q2 2025.

Service

I Sjöstan finns allt som gör ditt 9 till 5 trevligare, effektivare, smidigare – och roligare. Här finns service av innerstadskvalitet, med ett brett och varierat utbud av restauranger, caféer, butiker och annan närservice – allt inom gångavstånd. Här finns även flera hotellalternativ, konferenslokaler liksom goda möjligheter till aktiviteter utanför jobbet, men närhet till gymanläggningar som SATS, Nordic Wellness, Fitness24Seven, True Workout och STC Training. Eller varför inte ta en promenad längs Hammarby sjö, simma några längder i Eriksdalsbadet eller ta ett åk i Hammarbybacken? Du har även tillgång till all tänkbar service som ICA, Coop, blomsterbutik, skomakeri, systembolag inom gångavstånd.

Kommunikationer

Till Sjöstan kan du åka med tvärbana, cykel, båt, bil eller tunnelbanan vid Gullmarsplan som nås på cirka 8 minuters promenad. Från och med 2030 kommer tunnelbanans blå linje att passera Hammarby Sjöstad, med sträckning från Kungsträdgården och nya stationerna Sofia, Hammarby Kanal, Sickla, Järla och Nacka. I Hammarby Sjöstad kommer tunnelbanan att ha två uppgångar, en vid Mårtensdal och en vid Luma.

Omgivning

I Sjöstan hittar du din professionella mittpunkt – strax utanför Stockholms innerstad. Här finns både små och stora företag, myndigheter, arkitekter, växande techbolag och världskända varumärken kombinerat med trivsamma bostadsområden och kluckande kajer - vackert beläget vid vattnet. Med utmärkta kommunikationer och närhet till både stadspuls och grönområden är det en idealisk plats för företag som vill växa söder om stan.

  • 2915 - 4992 kvm
  • Lumaparksvägen 7, Hammarby Sjöstad
Vill du veta mer?
Marcus Christenson
Uthyrare Förvaltning
070-774 07 09
marcus.christenson@fabege.se

Intresseanmälan

Hammarby Sjöstad

I helt nya hus och i förädlade äldre industribyggnader sitter många företag som efterfrågar ett dynamiskt innerstadsläge med kreativa kontorsmiljöer. Här arbetar du i en levande stadsdelskänsla, en härlig blandning av boende, besökare och arbetande.

Läs mer om området
WAW - Work Away From Work
Extra arbetsplatser för våra kunder för att underlätta vardagen. Läs mer
VOV Hunddagis
Våra hunddagisar i samarbete med Stockholm Dog Care. Som hyresgäst hos Fabege har du dessutom förtur vid öppningen av VOV och vid lediga platser. Läs mer

Alla bilder

Planlösning

Visa på karta

Filter

Vill du veta mer?

Marcus Christenson
Uthyrare Förvaltning
070-774 07 09

Intresseanmälan