Gamla Brogatan 27, 201 kvm

Om lokalen

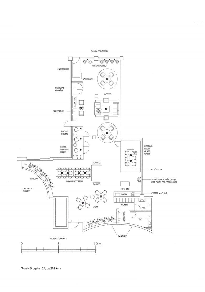
Representativt kontor med showroom

Nu finns möjlighet att hyra en attraktiv lokal om 201 kvm i gatuplan på Gamla Brogatan 27 i ett av Stockholms mest levande och eftertraktade citystråk. Här ges en perfekt möjlighet att kombinera showroom och kontor i ett läge med hög synlighet och stark puls.

Lokalen passar utmärkt för verksamheter som söker en kombination av representativt kontor med möjlighet till showroom eller kundmöten i ett levande cityläge. Gatuplanet ger både synlighet och tillgänglighet, samtidigt som planlösningen skapar goda förutsättningar för en flexibel arbetsmiljö.

De generösa ytorna möjliggör en effektiv mix av öppna arbetsplatser och mötesrum, med potential att anpassas efter hyresgästens behov. Här sitter ni med stadens puls precis utanför dörren, samtidigt som lokalen erbjuder en professionell och inspirerande arbetsmiljö.

Läget på Gamla Brogatan innebär omedelbar närhet till kommunikationer via Stockholm Centralstation, Arlanda Express och T-centralen – vilket gör det enkelt för både medarbetare och besökare att ta sig hit.

Service

I området finns all typ av tänkbar service inom gångavstånd. Du har enkel tillgång till flertalet parker, ett rikt kulturutbud, effektiva kommunikationer, ett varierat utbud av restauranger och caféer, förstklassiga hotell, shopping samt all tänkbar allmän service.

Kommunikationer

Ingång till T-centralen finns runt hörnet och därifrån når du hela Stockholm med tunnelbana, pendeltåg, bussar eller fjärrtåg.

Omgivning

I de så kallade Klarakvarteren, i den nedre delen av Norrmalm, får ni ett cityläge som kombinerar tempo med lite mer lugn. Fastigheten möter både Gamla brogatans promenad- och shoppingstråk och Vasagatans tydliga puls, vilket ger en smidig närhet till allt som händer i city. Drottninggatan nås med en kort promenad och Stockholms Centralstation ligger ett stenkast bort.

  • 201 kvm
  • Gamla Brogatan 27, Stockholms innerstad
Vill du veta mer?
Ann-Louise Gustafsson
Uthyrare Förvaltning
+46 76 894 23 00
ann-louise.gustafsson@fabege.se

Intresseanmälan

WAW - Work Away From Work
Extra arbetsplatser för våra kunder för att underlätta vardagen. Läs mer

Alla bilder

Planlösning

Visa på karta

Filter

Vill du veta mer?

Ann-Louise Gustafsson
Uthyrare Förvaltning
+46 76 894 23 00

Intresseanmälan